来源:URC公众号

一、背景现象

有737NG飞机反复间隙性反应,空中、起飞、滑跑和落地时,火警警铃都间断性响,无灯光指示,警铃比正常铃声弱。基本判断为线路问题导致的间歇性故障。

二、故障隔离

除火警系统所有探测器以外,控制器及面板更换完毕后,故障依旧,分段排除线路故障,最终发现E3-2电子架SM48 处有一线路(W0321-0499-20的这根白线)与支架接触磨损,模拟可以再现故障,将W0321-0498-22,W03210083-22,W0321-0499-20以及SM48在损伤处剪掉,重新做死接头压接此三根线,恢复E3-2电子架,完成所有电气测试,检查正常。

三、故障分析

三、故障分析

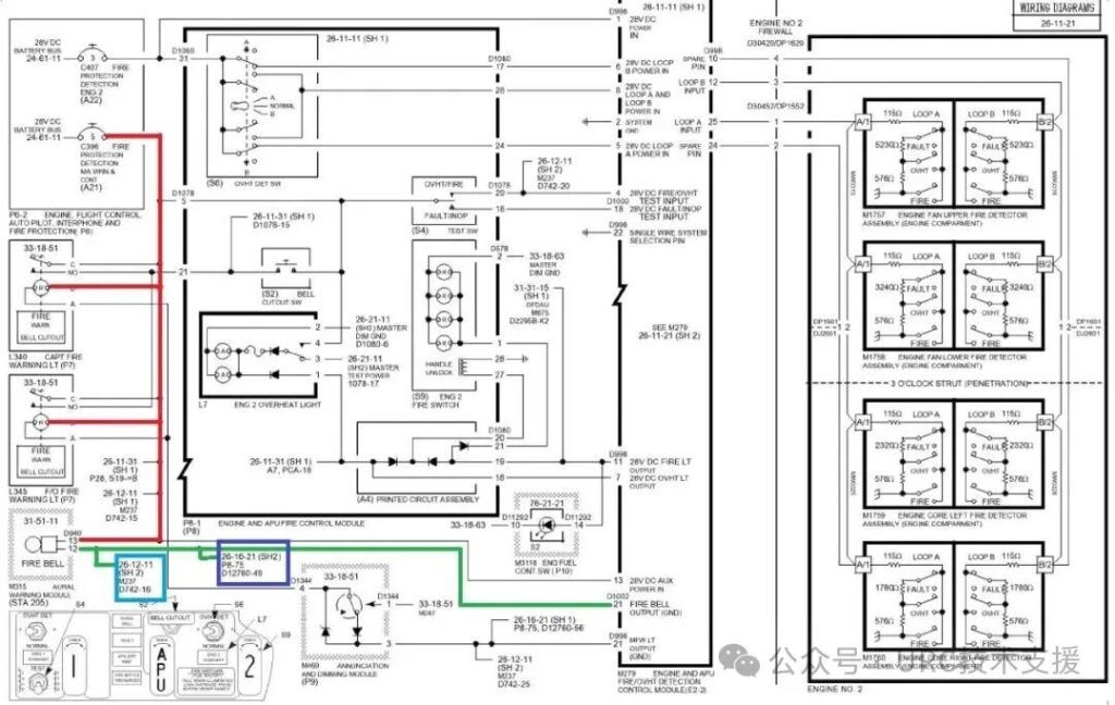
系统原理介绍

飞机火警警告系统在满足以下任一条件时,会发出音响并点亮警告灯来告知机组: 

1、1发火警;2、2发火警;3、APU火警;4、前货舱火警;5、后货舱火警;6、主轮舱火警

当探测到以上任一火警时,P7板两个FIRA WARN红灯会点亮,火警铃会响起;当APU火警时右轮舱火警铃及火警灯会交替工作,若飞机在空中出现APU火警,此铃声会被切断。

故障现象分析

此故障出现的现象仅为火警铃警告,无其他任何故障信息和现象,且每次故障报告都在飞机运行阶段。仅仅考虑火警故障时,其有可能的部件有火警探测器(发动机、APU,货舱及轮舱),火警探测控制组件,音响警告系统,线路。

若出现真实火警,任意探测元件探测到火警或过热信息,探测器均接地,此时现象为火警铃响,FIRE WARN灯亮。根据换件情况及仅仅只有火警铃响的故障现象来看,线路故障应该出现在音响的接地端。

由原理图初步判断,若M315火警警铃D940插头内P12号钉及后续线路出现接地,会导致本次故障现象,可能的线路:

1、绿色的线路(从M315火警铃D940的PIN12到M279内D1002的PIN21)

2、蓝色方框内的线路(从M315火警铃D940的PIN12到M237内D742的PIN16,如下图蓝框所示)

3、紫色方框内的线路(从M315火警铃D940的PIN12到P8-75板内D12760的PIN49,如下图紫框所示)

但检查后未发现异常,此时发现从M315火警铃D940的PIN12下游不仅连接P8-75面板,继续往下游连接R596和M2559 NGS控制器,R596继电器下游为二极管,电路不通,此时排故已经走到线路末端了,需要详细从以上三条线路出发,逐段隔离。

依据WDM 26-11-21-5和WDM26-16-21-6检查从M315火警铃D940的PIN12后部的线路,逐步断开插头量线测试,证明故障存在于D40462和D40486插头之间段。

最终在线路排查中,发现SM48 处有一线路(W0321-0499-20的这根白线)与支架接触磨损,模拟可以再现故障,修复后故障正常。

作者 zeng6350